house talk
건축문의 1588-9704

클래식한 지중해풍 친환경 목조주택

경남 밀양시 용전리

Concept

지중해풍의 빨간 기와지붕과 아이보리색 외벽 마감은 따뜻하고 클래식한 느낌을 줍니다. 한적한 시골 마을의 풍경에 자연스레 스며드는, 자연 친화적인 모습의 전원주택입니다.

Summary

연 면 적

118.05m²(35.71평)

1 층 면 적

87.66m²(26.52평)

2 층 면 적

27.99m²(8.47평)

포 치 면 적

2.4m²(0.73평)

건 축 구 조

경량목구조

외 장 재

스타코플렉스, 파벽돌

지 붕 재

점토기와

내 장 재

실크벽지, 강마루

창 호 재

미국식 시스템 창호

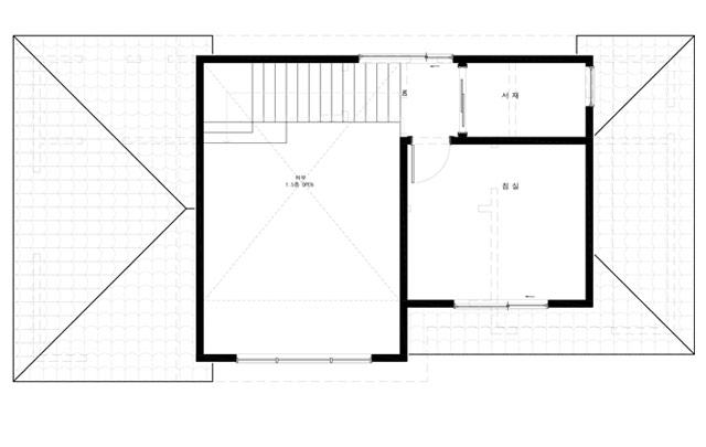
Floor Plan

http://www.house-talk.co.kr/image/image_design_drawing_image_1/design_drawing_image_1_1730274053.jpg

Exterior

Interior

경남 밀양시 용전리

이 주택으로 상담하기

*개인정보 수집 및 이용에 대한 동의