house talk
건축문의 1588-9704

전원속의 내집 11월호에 게재된 도심형 전원주택

경북 칠곡군 남율리

Concept

가족의 취향을 두루 담아 담백하게 빚어낸, 직각의 반듯한 선을 살린 모던한 디자인의 단독주택입니다. 화이트 컬러를 메인으로 짙은 브라운 톤의 세라믹사이딩, 고벽돌로 포인트를 주어 단조로움을 피하고 대칭되는 듯한 입면이 차분하고 안정감을 줍니다.

Summary

연 면 적

190.18m²(57.53평)

1 층 면 적

102.98m²(31.15평)

2 층 면 적

75.95m²(22.97평)

포 치 면 적

11.25m²(3.40평)

건 축 구 조

경량목구조

외 장 재

스타코플렉스, 세라믹사이딩, 파벽돌

지 붕 재

아스팔트슁글

내 장 재

실크벽지, 포세린타일, 강마루

창 호 재

독일식 시스템 창호

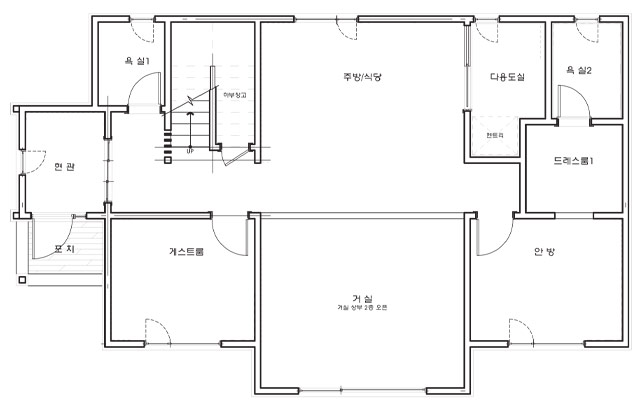
Floor Plan

http://www.house-talk.co.kr/image/image_design_drawing_image_1/design_drawing_image_1_1730183830.jpg

Exterior

Interior

경북 칠곡군 남율리

이 주택으로 상담하기

*개인정보 수집 및 이용에 대한 동의