house talk
건축문의 1588-9704

강원도 강릉시 석교리

Concept

Summary

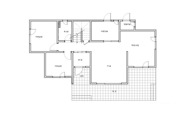
연 면 적

143.9m²(43.53평)

1 층 면 적

91.08m²(27.55평)

2 층 면 적

44.46m²(13.45평)

포 치 면 적

8.36m²(2.53평)

건 축 구 조

경량목구조

외 장 재

스타코플렉스, 파벽돌

지 붕 재

아스팔트슁글

내 장 재

실크벽지, 강마루, 레드파인

창 호 재

독일식 시스템 창호

Floor Plan

http://www.house-talk.co.kr/image/image_design_drawing_image_1/design_drawing_image_1_1733907001.jpg

Exterior

Interior

강원도 강릉시 석교리

이 주택으로 상담하기

*개인정보 수집 및 이용에 대한 동의