house talk
건축문의 1588-9704

자연 속에서 즐기는 완벽한 휴식, 독채 스파 펜션

충북 괴산군 운교리 〔펜션〕

Concept

자연 속에서의 휴식과 힐링을 선물하는 친환경 목조 스파 펜션입니다. 총 4개의 독채 건물이 지중해 양식을 모티브로 디자인되었으며 스파룸과 덱이 호수를 향해 있어 조망이 일품입니다.

Summary

연 면 적

404.93m²(122.49평)

1 층 면 적

110.82m²(33.52평)

2 층 면 적

28.5m²(8.62평)

건 축 구 조

경량목구조

B 동 면 적

76.68

D 동 면 적

68.67

외 장 재

스타코플렉스, 파벽돌

지 붕 재

점토기와

내 장 재

실크벽지

창 호 재

미국식시스템창호

C 동 면 적

76.68

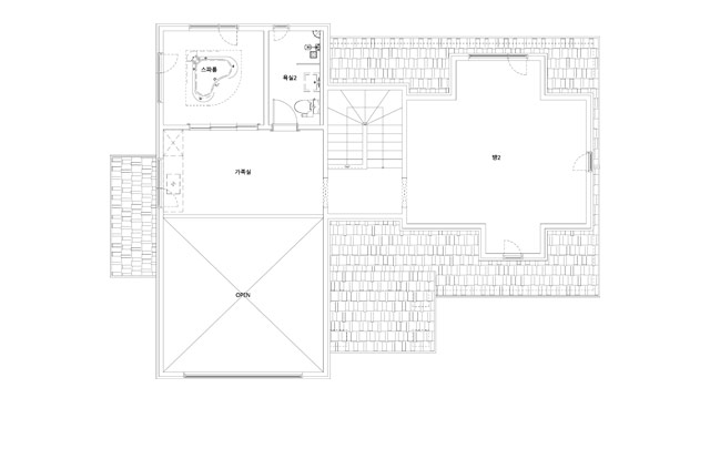
Floor Plan

http://www.house-talk.co.kr/image/image_design_drawing_image_1/design_drawing_image_1_1729760883.jpg

Exterior

Interior

충북 괴산군 운교리 〔펜션〕

이 주택으로 상담하기

*개인정보 수집 및 이용에 대한 동의