house talk
건축문의 1588-9704

기본에 충실한 30평 단층주택

경기도 양평군 월산리

Concept

2024년 하우스톡 기획상품 모델을 실물 주택으로 구현한 사례입니다. 은퇴 후 여유로운 전원생활을 꿈꾸는 건축주 부부에게 더하지도 덜하지도 않는 규모에 두 층을 오르내리는 번거로움이 없어 편안한 단층주택입니다. 개방적인 평면으로 각 공간의 접근성을 높이고 마당을 향해 커다란 개구부를 내 내부공간과 외부공간의 연계를 강조한 디자인이 돋보입니다.

Summary

연 면 적

104.49m²(31.61평)

1 층 면 적

99.81m²(30.19평)

포 치 면 적

4.68m²(1.42평)

건 축 구 조

경량목구조

외 장 재

스타코플렉스, 파벽돌, 합성목재사이딩

지 붕 재

아스팔트슁글

내 장 재

강화마루, 실크벽지, 포슬린타일(아트월)

창 호 재

미국식 시스템 창호

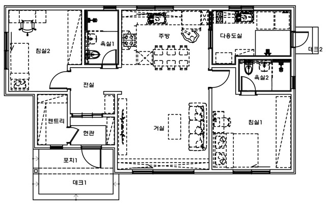
Floor Plan

http://www.house-talk.co.kr/image/image_design_drawing_image_1/design_drawing_image_1_1763948469.jpg

Exterior

Interior

경기도 양평군 월산리

이 주택으로 상담하기

*개인정보 수집 및 이용에 대한 동의