house talk
건축문의 1588-9704

엇갈린 지붕으로 독특한 매력을 가진 모던 하우스

경기도 용인시 묵리

Concept

Summary

연 면 적

136.51m²(41.29평)

1 층 면 적

83.16m²(25.16평)

2 층 면 적

44.71m²(13.52평)

포 치 면 적

8.64m²(2.61평)

건 축 구 조

경량목구조

외 장 재

스타코플렉스, 파벽돌, 칼라강판

지 붕 재

칼라강판

내 장 재

실크벽지, 강마루, 스타일월

창 호 재

미국식 시스템 창호

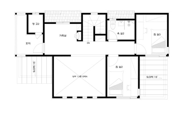
Floor Plan

http://www.house-talk.co.kr/image/image_design_drawing_image_1/design_drawing_image_1_1732867814.jpg

Exterior

Interior

경기도 용인시 묵리

이 주택으로 상담하기

*개인정보 수집 및 이용에 대한 동의