house talk
건축문의 1588-9704

품질 1위, 하우스톡 직영공사 현장을 자신있게 보여드립니다.

경기도 포천시 금주리

Summary

연 면 적

176.91m²(53.52평)

1 층 면 적

115.33m²(34.89평)

2 층 면 적

43.16m²(13.06평)

포 치 면 적

18.42m²(5.57평)

건 축 구 조

경량목구조

외 장 재

치장벽돌

지 붕 재

칼라강판

구 조 재

실크벽지, pvc장판, 화이트오크

창 호 재

독일식 시스템 창호

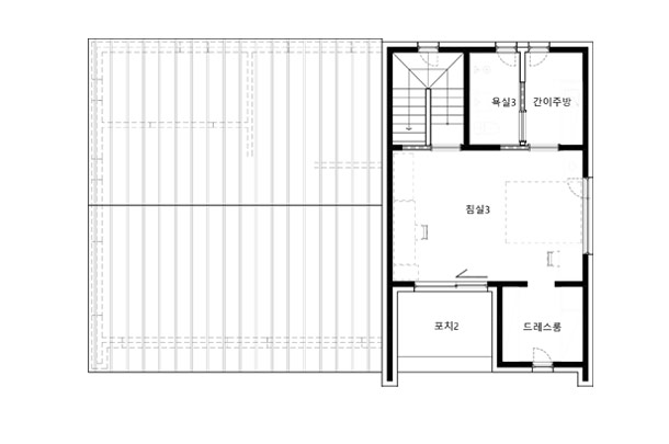
Floor Plan

Daily Progress

91%

01

기초

02

골조

03

창호벤트

04

전기

05

설비

06

방수

07

단열

08

석고내장

09

인테리어

10

외장

11

지붕

12

기타

13

완공

01. 기초공사

2025.11.10

2025.11.13

02. 골조공사

2025.11.18

03. 창호/벤트

04. 전기공사

2025.11.28

05. 설비공사

2025.12.3

06. 방수공사

2025.12.3

07. 단열공사

08. 석고/내장

09. 인테리어

10. 외장공사

2025.12.5

11. 지붕공사

2025.11.28

12. 기타공사

13. 준공청소/완공

2025.3.19